一、前言
在倾斜摄影三维模型上实现快速结构建模,通常依赖于Revit等专业软件建立BIM模型,再通过叠加与融合。该方法不仅操作流程繁琐,也对一般测量人员的技术门槛较高。本方法绕过复杂建模软件,直接依据已知三维坐标,在倾斜模型上快速构建辅助模型。
二、概述
本方法将指导完成公路桥墩关键部件(桩基/墩柱、系梁、盖梁)的三维模型创建。通过“Blender三维坐标计算程序”生成专用文件,并在Blender软件中自动构建三维模型,实现与实景倾斜摄影模型的可视化叠加。该方法是一种轻量化的三维建模,不仅避免了传统BIM软件繁冗的手工建模环节,也显著提升了建模的效率。
Blender是一款功能强大且开源免费的三维建模与渲染软件,集建模、动画、渲染、模拟、视频编辑等工具于一体。支持跨平台操作并拥有活跃的社区生态,其开源特性使得用户能够自由定制和扩展功能。在工程领域,它广泛应用于产品设计、机械仿真和建筑可视化,支持参数化建模与精确尺寸控制;同时,开源特性允许定制工具,成为低成本、高效率的工程解决方案。
三、数据准备与程序端操作
在进行操作前,需完成以下准备工作:
1.在电脑上安装Blender软件(建议版本4.2及以上版本)。
Blender软件:一款免费开源的3D创作套件。
下载地址:https://www.blender.org/download/lts/4-2/
图1 Blender软件
2.下载“Blender三维坐标计算程序”。
Blender三维坐标计算程序:用于生成与Blender软件对接的专用文件。
下载地址:Blender三维坐标计算程序
图2 Blender三维坐标计算程序
适用终端与运行环境:在便携式或台式微机的Windows环境下Microsoft Office Excel、WPS Office PC版上运行。在装有Office办公软件的电脑上使用,使用Microsoft Office 2007及以上版本可直接打开使用(需要启用宏)。在WPS Office软件中需要预先安装WPS VBA支持库,完毕后再打开表格程序方可使用(需要启用宏)。
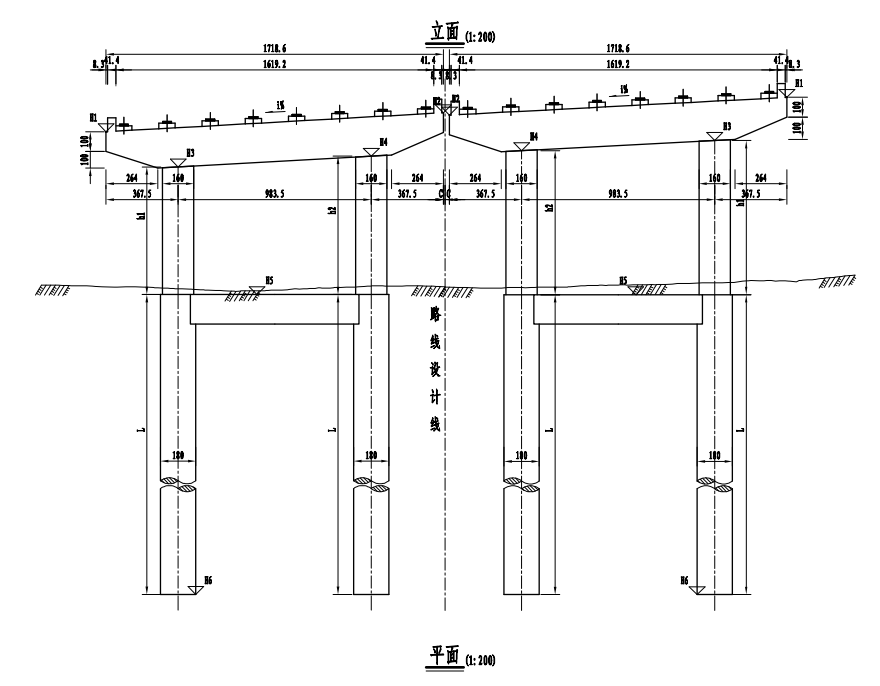
3.准备公路桥墩的设计图纸,包括平曲线、竖曲线、桥墩设计图(含:墩中心里程、偏距、斜交角、结构尺寸及设计标高)等。
图3 公路桥梁设计图纸目录
4.(针对公路桥墩盖梁)需在CAD中按设计图绘制盖梁立面图。
图4 公路桥墩盖梁CAD立面图
3.1 公路桩基/墩柱三维数据生成
本部分生成的三维数据文件用于构建桥墩桩基或墩柱的圆柱体模型。
操作步骤:
1)打开程序文件:在Excel或WPS中打开“Blender三维坐标计算程序”,确保宏已启用。
注:WPS Office软件中需要预先安装WPS VBA支持库。
图5 Blender三维坐标计算程序启动界面
2)填写设计参数:
在“平曲线与竖曲线”参数表中,准确输入项目的线路设计要素。
注:“平曲线与竖曲线”参数输入方式可参考“测量坐标计算程序V6操作说明”。
图6 交点法曲线要素表
图7 竖曲线要素表
定位到“公路桥墩”或对应的工作表,路径:主界面→三维立面图→公路桥墩→输入1“公路桩基”→确定。
图8 Blender三维坐标计算程序主界面
在桩基参数输入区域,按示意图填写:墩中心里程、中心偏距(相对于线路中线)、斜交角度、间距、孔桩数量、孔桩直径、设计标高、桩基高度(桩长)。
图9 桥墩示意图
图10 公路桩基绘图坐标计算表
3)计算并生成文件:
点击“计算坐标”按钮,程序将自动计算各桩基中心的坐标,核对计算出的坐标数据。
提示:支持手工输入孔桩坐标,再生成*.3dxyz文件,相关表格中必须填写的数据列包括H至Q列。
点击“生成笛卡尔3dxyz”或“生成高斯3dxyz”按钮(根据坐标系选择)。
图11 原点坐标
注:生成文件前,请务必确认“原点坐标”已在程序中正确设置(通常来源于metadata.xml文件)。原点坐标错误将导致所有模型位置偏移。
图12 数据导出成功提示
程序弹窗提示保存,将文件保存至当前文件夹内。
图13 Blender公路桩基笛卡尔坐标文件内容
3.2 公路系梁三维数据生成
本部分生成的三维数据文件用于构建连接桩基的矩形系梁模型。
操作步骤:
1)定位到“公路系梁”或对应的工作表,路径:主界面→三维立面图→公路桥墩→输入2“公路系梁”→确定。
2)填写系梁设计参数:系梁中心里程、中心偏距、系梁横向宽度、纵向长度、斜交角度、设计标高、系梁高度。
图14 公路系梁绘图坐标计算表
3)计算并生成文件:
点击“计算坐标”按钮,程序将自动计算各系梁角点的坐标,核对计算出的坐标数据。
点击“生成笛卡尔3dxyz”或“生成高斯3dxyz”按钮,保存系梁数据文件(如:Blender公路系梁笛卡尔坐标.3dxyz)。
图15 数据导出成功提示
程序弹窗提示保存,将文件保存至当前文件夹内。
图16 Blender公路系梁笛卡尔坐标文件内容
3.3 公路盖梁三维数据生成
本部分生成的三维数据文件用于构建盖梁模型。
首先,需绘制CAD立面图,并从中提取关键坐标信息,进而生成用于三维建模的多边形数据文件。
操作步骤:
1)绘制CAD立面图。
当桥墩位于曲线段时,各桥墩盖梁的尺寸均存在差异,因此需要为每个盖梁单独绘制立面图。依据桥墩构造图及相关参数表中的数据,完成各盖梁CAD立面图的绘制。
图17 公路桥墩立面图
图18 公路桥墩各部参数表
图19 公路盖梁CAD立面图
2)CAD数据提取:
在CAD中打开盖梁立面图。
图20 公路盖梁CAD立面图(单片)
在每片盖梁的立面图中,以设计标高点与线路中线交点为原点,使用UCS命令建立相对坐标系(Y轴向上,X轴向右)。
图21 建立相对坐标系
图22 参考示意图
参照示意图,使用多段线命令按示意图点号顺序连接完成,使用list命令查询盖梁轮廓各关键点的相对坐标(X, Y)。
图23 CAD坐标
将所有坐标点数据复制。
注:每片盖梁需单独复制一份数据,多片盖梁则对应复制多份。
2)程序端数据处理:
在程序配套的CAD数据表格中(路径:主界面→其他小工具→提取CAD坐标),粘贴已复制的坐标数据。
点击“提取数据”按钮,程序将自动格式化数据并提取相对坐标。
图24 提取CAD坐标
点击“复制到公路盖梁”按钮,将数据导入主程序中。
图25 计算公路盖梁三维坐标
3)参数填写与文件生成:
在主程序的盖梁参数区,补充输入桥墩桩号、盖梁纵向长度、斜交角度及设计标高等参数,点击“计算按钮”完成坐标计算。
说明:由于盖梁角点坐标系根据里程和偏距计算得出。当桥墩位于曲线段时,计算形成的几何图形为梯形(而非矩形或平行四边形),因此在某一端可能出现微小计算偏差,但该偏差不影响桥墩中线的准确定位。
图26 生成*3dxyz文件
点击“生成笛卡尔3dxyz”或“生成高斯3dxyz”按钮,保存盖梁数据文件(如:Blender公路盖梁高斯坐标.3dxyz)。
图27 公路盖梁.3dxyz文件
四、Blender端模型生成与查看
4.1 插件安装
为顺利连接“Blender三维坐标计算程序”与Blender软件,需安装Blender软件(建议版本4.2及以上版本)及相关插件。
插件下载地址:Blender三维坐标计算程序
①二维坐标绘图工具Beta
功能:识别扩展名为*.2dxy的文件,并自动绘制平面图。
②三维坐标绘图工具Beta
功能:识别扩展名为*.3dxyz的文件,并自动绘制立面图。
③批量导入倾斜摄影模型OBJ文件
功能:支持识别实景三维倾斜模型*.obj文件,并实现自动批量导入。
④查询坐标工具Beta
功能:提供笛卡尔坐标或高斯坐标在物体表面的查询功能。
Blender插件安装是确保后续流程正常运行的关键,具体操作步骤如下:
1)打开Blender软件。
2)点击顶部菜单栏的“编辑”→“偏好设置”。
3)在偏好设置窗口中,选择左侧的“插件”选项卡。
4)点击右上角的“从磁盘安装”按钮。
5)在弹出的文件浏览器中,找到并选择随本程序提供的专用插件文件(例如“三维坐标绘图工具V2.0.zip”),然后点击“从磁盘安装”。
6)安装成功后,在插件列表中找到该插件,勾选其左侧的复选框以启用它。
图28 Blender插件管理器
7)关闭偏好设置窗口。插件安装完成,您可以在Blender软件中按“字母N”打开侧边栏找到该插件的功能入口,点击启用。
图29 启用插件
8)偏好设置
对于使用笔记本电脑的用户,由于设备通常不带独立数字小键盘,在进行Blender软件操作时,可将键盘顶部的数字键模拟为数字小键盘使用,以确保软件功能正常运作。具体设置路径为:偏好设置→输入→键盘→勾选“模拟数字键盘”。
图30 偏好设置(模拟数字键盘)
4.2 导入并生成三维模型
操作步骤:
1)打开Blender软件。
2)打开侧边栏:按键盘上的“N”键,打开右侧工具侧边栏。
3)启用插件:在侧边栏中找到并点击“三维坐标绘图Beta”插件的标签页,再次点击“点击启用”按钮将其展开。
图31 在侧边栏找到插件
4)设置原点坐标:在插件面板的高斯坐标“原点坐标”输入框中,输入与metadata.xml完全一致的X,Y,Z坐标值。此步骤至关重要,否则模型位置会错误。
图32 设置原点坐标
注:原点坐标可通过“metadata.xml”文件找到。
图33 metadata.xml文件
原点坐标介绍:在无人机航测实景三维倾斜模型数据处理流程中,生成的metadata.xml文件是关键的原点坐标文件。该文件记录了真实世界坐标系下的三维坐标,这些坐标与实景三维倾斜模型在Blender软件中所使用的局部坐标系之间存在一定的转换差值。
若要在Blender中准确还原模型的空间位置,需在“Blender三维坐标计算程序”正确输入该原点坐标。坐标填写若出现误差,将直接导致生成的笛卡尔坐标错误,进而影响整个模型在三维场景中的定位。如果Blender相关插件中未正确配置此外部原点坐标,即使模型数据完整,导入后也会出现位置偏移,无法与实际地理信息对齐。
原点坐标的准确获取与正确应用,是确保倾斜摄影测量数据在三维软件中空间一致性的基础,对后续分析、可视化及集成应用至关重要。
5)选择坐标类型:在“坐标类型”中选择与您生成文件时一致的选项(笛卡尔坐标或高斯坐标)。
6)导入文件生成模型:
点击“选择文件并自动识别绘制”按钮。
在文件浏览器中,找到并选择您之前保存的*.3dxyz文件(如:Blender公路桩基高斯坐标.3dxyz)。
图34 导入文件
点击“选择文件并自动识别”,Blender将自动在三维视图中创建对应的桩基圆柱体模型。
注:绘制完成后按Shift+C居中显示模型,并配合鼠标滚动条及Shift键平移、缩放查看效果。
图35 公路桩基模型
7)重复导入:重复步骤6,依次导入系梁(*.3dxyz)和盖梁(*.3dxyz)文件。所有部件将自动在正确位置生成。
图36 公路桩基、系梁模型
图37 公路桩基、系梁、盖梁模型
图 38 “材质预览”模式
4.3 模型叠加与视图操作
1)与实景模型叠加:
使用“批量导入倾斜摄影模型OBJ文件”插件,批量导入实景三维OBJ模型。
注:实景三维模型(OBJ格式)可通过无人机航测软件直接生成,也可借助专业软件进行格式转换,例如使用OSGBlab将倾斜摄影模型(OSGB格式)转换为OBJ格式。
操作步骤:按“字母N”打开侧栏→点击“OBJ导入插件”→选择OBJ文件夹路径→点击“批量导入OBJ”→选择顶部“材质预览”模式
。
图39 批量导入OBJ
注:绘制完成后按Shift+C居中显示模型,并配合鼠标滚动条及Shift键平移、缩放查看效果。
导入的实景模型效果图:
图40 实景模型
公路桥墩三维模型与导入的实景模型叠加效果图:
图41 三维模型与实景模型叠加
说明:图中红色部分为基于三维坐标绘制的公路桥墩模型。
注:若模型未显示或位置异常,请立即检查:①Blender插件中的“原点坐标”是否设置正确;②导入文件的“坐标类型”是否与生成时一致。
在视口叠加层中,使用“测量”工具可直观测量尺寸并进行偏差对比。
图42 测量尺寸
图43 测量尺寸
图44 测量尺寸
2)视图操作
居中显示:按“Shift + C”将视图游标归位并显示所有模型。
检查模型:使用“鼠标中键旋转”、“Shift+鼠标中键”平移、“滚轮或Ctrl+拖动鼠标中键”缩放,从不同角度查看模型。
图45 不同角度查看模型
图46 不同角度查看模型
图47 不同角度查看模型
3)查询坐标
程序功能:支持直接在模型物体上查询高斯坐标,实现类似CAD软件的坐标查询功能。
操作步骤:启动“查询坐标Beta”插件后,使用鼠标左键点击模型上的任意位置,即可在插件界面中显示该点的坐标及高程信息,并提供一键复制全部内容的功能。
图48 查询坐标
应用场景:适用于快速获取结构物特征点的坐标与高程数据。
图49 查询坐标
4)精度说明
本方法所构建的模型精度主要取决于以下两方面:
倾斜摄影模型自身精度:需通过规范化的无人机外业数据采集与数据处理来保证;
三维坐标计算准确性:计算过程中需确保相关表格中参数输入准确,避免因参数错误导致模型偏差。
除上述因素外,建模过程本身不引入其他精度误差。
五、应用场景
通过本方法创建的公路桥墩模型,可广泛应用于:
1)施工前模拟放样:在实景三维模型中精准可视化桥墩设计位置,辅助现场踏勘与方案交底。
2)施工过程校验:将设计模型与施工过程中的实景模型定期叠加,快速检查桩基位置、系梁与盖梁模板支护是否与设计相符,实现数字化质量管控。
3)竣工验收:通过对比竣工实景模型与设计模型,为竣工验收提供可靠依据。
六、Blender常规操作
1)视图控制
旋转视图:按住鼠标中键并拖动。
平移视图:按住Shift+鼠标中键并拖动。
缩放视图:滚动鼠标滚轮(以鼠标光标为中心缩放)、Ctrl+鼠标中键并拖动(上下拖动进行缩放)。
聚焦物体:选中物体后,按数字小键盘的“.”(点),或按 Numpad“.”,视图会立即聚焦到该物体。
2)视图/视角切换:
小键盘 1:前视图
小键盘 3:右视图
小键盘 7:顶视图
小键盘 0:相机视角
小键盘 5:切换正交/透视视图
3)物体选择与变换
鼠标左键:单击选择,按住可框选。
Shift+鼠标左键:加选或减选(多选/反选)。
A:全选。
Alt+A:取消全选。
变换(移动/旋转/缩放):G:移动(Grab)。R:旋转(Rotate)。S:缩放(Scale)。
技巧:按G后,再按 Shift+X表示排除X轴,即在YZ平面移动。
4)编辑模式下的常用键
Tab:切换物体模式和编辑模式。
E:挤出选中的面或边。
Ctrl+R:环切,在模型上添加一圈循环边。
Alt+鼠标左键:选择循环边(一圈连续的边)。
5)快速搜索与工具
F3:搜索菜单。
空格键:默认为播放动画。
Ctrl+Z:撤销操作。
Shift+Ctrl+Z:重做(恢复撤销)。
本内容为作者个人观点,不代表学测量网站立场.
如对本文有异议或投诉,联系bd@xueceliang.cn
















































